Svajoje apie nuosavą namą dažnai įsivaizduojame erdvų, jaukų ir funkcionalų būstą, atitinkantį visus šeimos poreikius. Vienas iš populiariausių pasirinkimų - namo projektas su gyvenama mansarda. Toks sprendimas leidžia optimaliai išnaudoti erdvę, sukurti įdomų interjerą ir suteikti namui savitumo.

Kodėl verta rinktis namą su mansarda?
- Erdvės išnaudojimas: Mansarda leidžia padidinti gyvenamąjį plotą, neplečiant namo pagrindo. Tai ypač aktualu mažesniuose sklypuose.
- Interjero įvairovė: Mansardos erdvė suteikia galimybę kurti įdomius ir nestandartinius interjero sprendimus.
- Šiluma ir jaukumas: Mansarda, tinkamai apšiltinta, gali tapti jaukia ir šilta erdve, puikiai tinkančia miegamiesiems ar poilsio zonoms.
- Estetika: Namai su mansarda atrodo patraukliai ir originaliai.
Populiarūs namų su mansarda projektai
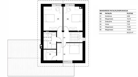
Šiuolaikiškas, optimalaus ploto, vieno aukšto su mansarda, gyvenamojo namo projektas. Pastatas ne tik pritaikomas 4 - ių asmenų šeimos poreikiams, bet atraktyvus organizuojamomis erdvėmis, 147 kv.m. ploto. Pirmame aukšte išdėstomos - vaikų, svetainės bei ūkinės zonos, antrame - tėvų bei poilsinė zona - holas, biliardinė - iš pastarosios numatomas vidinis balkonas - ryšys su pirmo aukšto valgomuoju. Pastatas pritaikomas tradiciniame 6 a sklype.
Min. Vieno aukšto su mansarda gyvenamasis namas - Markas, dvišlaičiais stogais, su keturiais kambariais, skirtas 4 - 5 asmenų ar gausesnei šeimai. Šis namas puikiai tiks sklypui, kurio orientacija su įvažiavimu iš pietų. Namo bendras plotas - 194,61 m2. Namo išplanavimas labai patogus suskirstytas į: pagalbinę, gyvenamąją bei poilsio zonas. Svetainė, virtuvė ir valgomasis sujungta į bendrą erdvę. Prie namo suprojektuotas 24,00 m2 garažas (pagal Jūsų poreikį gali būti ir dviems automobiliams) bei jauki 15,00 m2 terasa. Namo naudingas (šildomas) plotas - 170,61 m2. Projekte galima atlikti pakeitimus, šį kartotinį projektą maksimaliai pritaikant pagal Jūsų šeimos poreikius.
Šis individualus vienbutis namas su mansarda - visiškai pritaikytas tiems, kurie ieško erdvios ir patrauklios gyvenamosios vietos. Šio pastato pirmajame aukšte įrengta talpi svetainės, valgomojo ir virtuvės erdvė, tambūras, dušo kambarys, bei vienas miegamasis kambarys. Didžiausias individualaus vienbučio privalumas - mansardos tipo antrasis namo aukštas. Toks sprendimas itin mėgstamas tų, kurie trokšta, jog namuose būtų neįprastas išplanavimas, įdomūs interjero akcentai bei savitas vaizdas. Iš ekologiškų medžiagų pastatytas namas sukuria puikią atmosferą bei natūralumo ir paprastumo pojūtį.
Pateiktas projektas - mūsų pasiūlymas jums, kurį galime koreguoti pagal jūsų lūkesčius bei pageidavimus.
NUOSTABU! DAUGIAU NEI 100 PALĖPĖS INTERJERO DIZAINO IDĖJŲ | GERIAUSIAS PALĖPĖS NAMAS, SVETAINĖ, BIURAS, MIEGAMASIS
Kartotiniai ar individualūs projektai?
Rinkoje siūlomi du pagrindiniai namų projektų tipai: kartotiniai ir individualūs. Kiekvienas iš jų turi savo privalumų ir trūkumų.
Kartotiniai projektai
Kartotiniai namų projektai - tai praktiškas, ekonomiškas ir laiko patikrintas sprendimas svajonių namams. Šie projektai sukurti remiantis ilgamete architektų patirtimi, atsižvelgiant į šiuolaikinius gyvenimo poreikius, energinį efektyvumą ir funkcionalų erdvių išplanavimą, vadovaujantis Statybos techniniais reglamentais. Mūsų siūlomi gyvenamųjų namų projektai pritaikyti Lietuvos klimato sąlygoms, atitinka galiojančius statybos reikalavimus ir gali būti lengvai koreguojami pagal individualius poreikius. Platus pasirinkimas leidžia rasti sprendimą tiek kompaktiškam miesto sklypui, tiek erdviam užmiesčio namui.
Kartotiniai namų projektai leidžia sutaupyti ne tik projektavimo išlaidas, bet ir laiką. Nereikia kurti projekto nuo nulio - paruošti sprendimai leidžia greičiau pradėti statybas ir sumažinti projektuotojų sąnaudas. Kartotinio namo projekto kaina yra mažesnė nei individualaus, nes sprendiniai jau sukurti ir patikrinti. Galutinė kaina priklauso nuo projekto dydžio ir reikalingų koregavimų. Kartotinio projekto pritaikymas dažniausiai trunka trumpiau nei individualaus - terminai priklauso nuo korekcijų apimties ir derinimų.
Homers platformoje leidžiami projekto koregavimai, kadangi nėra universalių namų planų, tinkamų visiems. Neesminiai dažniausiai laikomi vidaus patalpų išplanavimo, angų sienose (langų, durų) ir namo apdailos koregavimai, jei nekeičiamos laikančios konstrukcijos. Esminiai projekto pakeitimai yra išorės atitvarų (laikančių konstrukcijų) koregavimas - tokių pakeitimų darbų kaina vertinama individualiai.
Kartotiniai gyvenamųjų namų projektai - tai greitesnis startas, patikimas planavimas, mažesnės rizikos ir geresnė investicija į jūsų svajonių namus. Renkantis kartotinį namo projektą Homers statybos projektų platformoje, jūs gaunate saugų, patikrintą ir ekonomiškai naudingą sprendimą savo būstui statyti.
Individualūs projektai
Individualūs projektai leidžia maksimaliai pritaikyti namą prie Jūsų poreikių ir sklypo ypatumų. Tačiau tokie projektai yra brangesni ir užtrunka ilgiau.
Energinis efektyvumas
Kadangi energinio naudingumo reikalavimai aukšti, klasikinės statybos sprendiniai rinkai tampa ne tokie patrauklūs ir priimtini. Ventiliuojamo fasado sienos, atitinkančios A++ reikalavimus, yra plonesnės už įprastines konstrukcijas, todėl išnaudojamas didesnis bendrasis vidaus patalpų plotas.
Naudojamas plienas yra 100 % perdirbama medžiaga. Dėl šios priežasties neeikvojami gamtos ištekliai ir nėra atliekų. Konstrukcijos atitinka žiedinės ekonomikos principus ir yra lengvai transportuojamos.
Statybos leidimas ir projektavimo paslaugos
Pats projektas nėra statybos leidimas, tačiau jis yra būtinas dokumentas statybos leidimui gauti. Suderinus namo projektą, ir gavus statybos leidimą, bei abiem pusėms įvykdžius sutartyje numatytus darbus ir veiksmus - namo projekto ir statybos leidimo skaitmeniniai failai perduodami e.
Projektavimo paslaugų sudėtis su statybos leidimu:
- Architektūrinė dalis
- Konstrukcinė dalis
- Specialiųjų architektūros reikalavimų išėmimas
- Bendroji dalis
- Sklypo sutvarkymo dalis
- Lauko vandentiekio ir nuotekų šalinimo dalis
- Energinio naudingumo ataskaita (A++)
- Leidimas statybai: projekto pateikimas IS „Infostatyba“
Papildomų paslaugų kainos:
- Leidimas statybai - nuo 1200 € + PVM
- Pakeitimai, projekto korekcijos - nuo 200 € + PVM
- Mokestis savivaldybei už statybos leidimo išdavimą - 93 € + infrastruktūros plėtros mokestis - tikslinama konkrečiu atveju
- Prisijungimo sąlygų, sutikimų, pritarimų projektui ir kitų reikalingų dokumentų gavimas, derinimas su kitomis institucijomis - teirautis
- Kitų inžinerinių komunikacijų, kurios neprivalomos statybos leidimui gauti, išorės/vidaus projektavimas - teirautis
Kaip pasirinkti tinkamą projektą?
Išsirinkti tinkamą namo projektą yra vienas svarbiausių žingsnių statant namą - nuo jo priklauso ne tik estetika, bet ir gyvenimo kokybė, eksploatacijos sąnaudos, statybų kaina ir ilgalaikė turto vertė.
Svarbūs faktoriai renkantis projektą:
- Statybų biudžetas
- Sklypo dydis, forma ir kryptis
- Ar planuojate garažą? Sandėliuką? Pirtį? Dirbtuves?
- Ar bus terasa?
- Architektūrinis stilius
- Mažo (iki 80 m2) ar vidutinio ploto namo statybai (iki ~130m2) - vieno aukšto planas dažniau yra ekonomiškesnis pasirinkimas
Taip pat, pažymime, kad beveik visuose projektuose numatytos medinės santvarinės stogų konstrukcijos. Mūsų kartotinių namų projektai atliepia šių dienų architektūrines tendencijas, tačiau ne komplikuoja techninių sprendimų įgyvendinimo.

Žemės sklypo pasirinkimas
Renkantis žemės sklypą namo statybai, yra nemažai kriterijų ir nematomų aspektų, kurie gali ne tik nulemti planuojamo pastato statybos sprendinius, tačiau apskritai gali tekti nukelti statybų planus ilgam laikui arba ieškotis kito sklypo. Sutinkame daugybę atvejų, kada pardavėjas ne iš blogos valios, neinformuoja pirkėjo, apie tai, kad pavyzdžiui žemės sklypų kvartalui parengtu detaliuoju planu numatytos vietinės inžinerinės komunikacijos (vandentiekio gręžinys ir buitinių nuotekų valykla), jos neįrengtos ir neplanuojamos pardavėjo. Tada rajono savivaldybė neišduoda leidimo statybai, o kvartale įsigijusių žemės sklypus 20, 50 ir daugiau savininkų. Pavieniams statytojams tampa neįmanoma įgyvendinti infrastruktūros projektavimo ir įrengimo darbus, panašiai yra ir su susisiekimo (vidaus kelio) komunikacijų klausimu.
Svarbūs aspektai renkantis sklypą:
- Reljefas: lygus ar su nuolydžiu?
- Inžinerinės komunikacijos
- Susisiekimo komunikacijos
Neskubėkite. Norite pradėti savo svajonių namo įgyvendinimą?