Norint pradėti savo verslą ir atidaryti restoraną, kavinę ar barą, pirmiausia reikia susirasti tinkamas patalpas ir pradėti ne nuo maitinimo įstaigos dizaino, kaip daugelis norėtų, bet paruošti technologinį planą, kuris atitiktų visus Valstybinės maisto ir veterinarijos tarnybos keliamus reikalavimus. Toks planas - tai įmonės saugiklis, kuris užtikrina, kad įpusėjus, ar vos tik pabaigus statybos darbus, nereikės visko išgriauti ir statyti iš naujo.
Dažnai restorano įkūrėjai susiranda patalpas, pradeda statybas ir tik joms įpusėjus ar net pasibaigus skambina mums ir pasako, kokios virtuvės įrangos jiems reikia. Tačiau vėliau paaiškėja, kad jie nebūna numatę visų reikiamų prietaisų, tam tikrų zonų, kurios reikalingos ne tik pagal Valstybinės maisto ir veterinarijos tarnybos reikalavimus, bet ir norint efektyviai dirbti. Pasirinkę tokį veiksmų eiliškumą jie rizikuoja išleisti daugiau, kadangi gali prireikti griauti, perdaryti arba apskritai ieškoti naujos vietos virtuvei. Su tokia problema dažniausiai susiduria tie, kurie atidaro pirmąjį restoraną.
Kitą kartą jie jau žino, kad reikia pradėti nuo technologinio plano ir jame numatyti ir tinkamai įrengti visas reikiamas zonas, kad restoranui pradėjus veiklą virtuvės darbuotojai turėtų visas sąlygas dirbti efektyviai ir kokybiškai.
Šiame straipsnyje aptarsime bendruosius kavinių patalpų reikalavimus Lietuvoje, pradedant nuo reikalavimų patalpų išdėstymui ir įrangai, baigiant higienos praktika ir priežiūra.
Bendrieji reikalavimai kavinių patalpoms
Nepriklausomai nuo to, ar tai namų virtuvė, ar pramoninė gamykla, konditerijos patalpoms keliami tam tikri bendrieji reikalavimai, užtikrinantys maisto saugą ir kokybę.
Patalpų išdėstymas ir įranga
- Atskyrimas: Patalpos turi būti atskirtos nuo gyvenamųjų patalpų, kad būtų išvengta kryžminio užteršimo.
- Paviršiai: Visi paviršiai, kurie liečiasi su maistu, turi būti lengvai valomi ir dezinfekuojami. Rekomenduojama naudoti nerūdijantį plieną arba kitas neporėtas medžiagas. Turi būti užtikrinama gera grindų dangos būklė, danga turi būti lengvai valoma, o prireikus dezinfekuojama. Grindų dangai turi būti naudojamos nelaidžios, nesugeriančios, plaunamos ir netoksinės medžiagos. Sienos turi būti švarios, paviršius turi būti lygus, lengvai valomas, užglaistytomis sandūromis. Durys turi būti švarios, lygios, pagamintos iš drėgmės neabsorbuojančių, lengvai valomų ir dezinfekuojamų medžiagų.
- Apšvietimas: Patalpos turi būti gerai apšviestos, kad būtų galima tinkamai įvertinti maisto produktų kokybę ir higieną.
- Ventiliacija: Turi būti užtikrinta tinkama ventiliacija, kad būtų pašalinti kvapai, garai ir kondensatas. Įrengiant virtuvę būtina atkreipti dėmesį į kokybišką ventiliaciją, kurią daug kas tiesiog užmiršta. Tinkamai parinkta ventiliacija turi užtikrinti, kad restorane, kavinėje nebūtų jokių pašalinių kvapų, kad joje jaukiai jaustųsi ne tik darbuotojai, bet ir klientai. Tinkama ventiliacija turi visą nereikalingą kvapą, blogą orą ne tik ištraukti iš kavinės patalpų, bet ir tinkamai jį išleisti į orą. Ventiliacijos sprendimas parenkamas priklausomai nuo patalpų dydžio, taigi kiekviename restorane ar kavinėje turi būti paruošiamas individualus planas, kuris užtikrintų reikiamą oro kaitą. Jeigu restorane bus sumontuota nekokybiška ventiliacija, klientai užuos iš virtuvės sklindančius pašalinius kvapus, jiems bus nemalonu sėdėti restorane, sunkės sąlygos darbuotojams.
- Kriauklės: Turi būti atskiros kriauklės rankoms plauti ir įrangai valyti.
- Temperatūros kontrolė: Turi būti užtikrinta tinkama temperatūra maisto produktams laikyti ir gaminti.
- Kenkėjų kontrolė: Turi būti įdiegtos kenkėjų kontrolės priemonės, kad būtų išvengta jų patekimo į patalpas. Pvz. Laikykite uždarytus langus ir duris, jei jie atviri turėtų būti barjerai - tai yra ant langų - tinkleliai, ant durų užuolaidos užkertančios kelią kenkėjams patekti į vidų.
Higienos praktika
- Asmeninė higiena: Darbuotojai turi laikytis griežtų asmeninės higienos taisyklių, įskaitant rankų plovimą, švarių drabužių dėvėjimą ir plaukų uždengimą. Privaloma išklausyti higienos žinių ir įgūdžių kursus ir turėti higienos pažymėjimą (vis dar dažnai Lietuvoje vadinamą žalia kortele).
- Maisto tvarkymas: Maisto produktai turi būti tvarkomi saugiai, kad būtų išvengta užteršimo.
- Valymas ir dezinfekcija: Patalpos ir įranga turi būti reguliariai valomos ir dezinfekuojamos. Visi paviršiai (įskaitant įrenginių paviršius), kurie gali liestis su maistu, turi būti švarūs, valomi ir dezinfekuojami. Apžiūrima ar viskas švariai išvalyta. Stebėjimas vykdomas pasitelkiant RVASVT (Rizikos veiksnių svarbių valdymo taškų kokybės sistemą) arba laikantys GHPT (geros higienos praktikos taisyklių). Labai svarbu viską registruoti, ir stebėti, kad visos medžiagos būtų naudojamos pagal gamintojo nurodymus.
- Atliekų tvarkymas: Atliekos turi būti tvarkomos saugiai, kad būtų išvengta užteršimo. Konteineriai turi būti atitinkamos konstrukcijos, gerai prižiūrimi, lengvai valomi, o prireikus dezinfekuojami.

Patalpų techniniai reikalavimai
Svarbu atkreipti dėmesį į šiuos patalpų techninius reikalavimus:
- Langai turi būti švarūs ir sukonstruoti taip, kad būtų galima juos valyti bei išvengti nešvarumų kaupimosi.
RVASVT ir GHPT sistemos
Maisto tvarkymo subjektai privalo tvarkant maistą taikyti RVASVT sistemą, parengtą pagal 2004 m. balandžio 29 d. Europos Parlamento ir Tarybos reglamento (EB) Nr. 852/2004 dėl maisto produktų higienos. Maisto tvarkymo įmonės gali pasirinkti joms priimtiną savikontrolės sistemos diegimo variantą: RVASVT sistemos ar Geros higienos praktikos taisyklių (toliau - GHPT) taikymą. Kiekvienos smulkios ar vidutinės maisto tvarkymo įmonės savininkas ar vadovas įsakymu turi patvirtinti savo įmonės pasirengimo programą tvarkyti maistą pagal GHPT.
Pramoninės konditerijos gamybos patalpų reikalavimai
Pramoninės konditerijos gamybos patalpoms keliami aukštesni reikalavimai nei namų virtuvėms. Tai susiję su didesniais gamybos mastais ir didesne rizika užteršti maisto produktus.
Sertifikavimas
Pramoninės konditerijos įmonės dažnai sertifikuojamos pagal tarptautinius standartus, tokius kaip ISO 22000 arba BRC Global Standards. Šie standartai apima visus aspektus, susijusius su maisto sauga, nuo patalpų išdėstymo iki darbuotojų mokymo.
Patalpų zonavimas
Pramoninėse konditerijos įmonėse patalpos dažnai yra suskirstytos į zonas, kad būtų išvengta kryžminio užteršimo.
Įrangos reikalavimai
Pramoninė konditerijos įranga turi atitikti aukštus higienos standartus. Ji turi būti pagaminta iš nerūdijančio plieno arba kitų neporėtų medžiagų ir lengvai valoma bei dezinfekuojama.
Kokybės kontrolė
Pramoninėse konditerijos įmonėse taikomos griežtos kokybės kontrolės procedūros, kad būtų užtikrinta, jog visi gaminiai atitinka nustatytus standartus. Tai apima žaliavų tikrinimą, gamybos proceso stebėjimą ir galutinių produktų testavimą.
Konditerijos patalpų priežiūra ir kontrolė
Reguliari konditerijos patalpų priežiūra ir kontrolė yra būtina norint užtikrinti maisto saugą ir kokybę.
Savikontrolės sistema
Kiekviena konditerijos įmonė turi turėti savikontrolės sistemą, kuri apimtų visus aspektus, susijusius su maisto sauga.
VMVT patikrinimai
VMVT inspektoriai reguliariai tikrina konditerijos įmones, kad įsitikintų, jog jos laikosi maisto saugos reikalavimų. Patikrinimų metu gali būti tikrinami patalpų išdėstymas, įranga, higienos praktika, kokybės kontrolės procedūros ir kiti aspektai.
Patalpų paskirties svarba
Nekilnojamojo turto paskirtis yra vienas iš pagrindinių dalykų, kurį būtina žinoti tiek turto savininkams, tiek nuomininkams, norint užtikrinti teisėtą ir efektyvų turto naudojimą. Pastato (patalpų) paskirtis rodo jo naudojimo tikslą (žmonėms gyventi, ūkinei komercinei ar kitai veiklai vykdyti). Skirtingų paskirčių rūšims yra taikomi skirtingi sveikatos, apsaugos nuo triukšmo, gaisrinės saugos, automobilių stovėjimo vietų skaičiaus ir kiti reikalavimai.
Pagal paskirtį pastatai yra skirstomi į gyvenamuosius ir negyvenamuosius. Pastarieji turi pogrupius, pavyzdžiui, maitinimo, transporto, prekybos ir kt.
Pastatas (patalpa) priskiriamas prie tam tikros paskirties pogrupio, jeigu jo visas bendrasis plotas arba didžiausioji jo dalis naudojama tai paskirčiai.
- Gyvenamosios paskirties pastatai (patalpos) - tai pastatai (patalpos), kurie skirti žmonių gyvenimui.
- Negyvenamosios paskirties pastatai (patalpos) - tai pastatai (patalpos), kurie nėra skirti nuolatiniam gyvenimui, o kitoms veikloms, tokioms kaip komercinė, administracinė, gamybinė, pramoninė ar visuomeninė.
Pastato (patalpų) paskirtis yra reikšminga ne tik dėl jų atitikties skirtingiems saugos, sveikatos ir kt. reikalavimams, tačiau gali lemti ir kitas svarbias aplinkybes, pavyzdžiui, mokesčius.
Kavinių įrengimo pavyzdžiai
Štai keletas restoranų planų pavyzdžių, kuriuose pavaizduoti visi pagrindiniai restorano veiklai reikalingi įrenginiai, patalpos ir erdvės. Planuojant atidaryti maitinimo įstaigą, svarbiausia yra žinoti restorano ar kavinės koncepciją, kokia bus pagrindinė veikla, į kokią auditoriją orientuota, nes nuo to priklauso virtuvei reikalingas plotas, kiek erdvės reikės klientams ir pan.
Sushi išsinešimui restorano planas
Šiame plane pavaizduotas restoranas, kuriame gaminami sushi išsinešimui ir keliolika sėdimų vietų. Visas restorano plotas apie 80 kV/m. Virtuvė su sandėliavimo zona apie 18 kv/m atitinka kliento poreikius ir visus reikalavimus. Kaip matote skaičiais pažymėti įrengimai, patalpos ir zonoa:
- Personalo kambarys
- Sandėliavimo zona
- N.pl. šaldytuvas
- N.pl. šaldiklis
- N.pl. stelažas
- Pjaustymo zona
- N.pl. stalas su lentyna ir borteliu
- N.pl. pakabinama lentyna dviguba
- Virtuvės inventoriaus plovimo zona
- N.pl. stalas su plautuve
- N.pl. stelažas
- Šiukšlių kibiras
- Kepimo zona
- Gartraukis su riebaliniais filtrais virš įrengimų
- N.pl. šaldomas darbo stalas 3-jų durelių
- Gruzdintuvė
- Indukcinė viryklė
- Ryžių puodas
- Svarstyklės
- Atleidimo zona
- N.pl. stalas su plautuve kairėje ir lentyna
- Marmitas
- Sušistų zona
- N.pl. šaldomas stalas 4 durelių
- Sushi vitrinėlė
- N.pl. taburetė ryžiu puodui
- Baro zona
- Medinis stalviršis su plautuve dešinėje
- Kavos malūnas
- Kavos aparatas
- Medinis stalviršis
- Kasos aparatas

Picerijos virtuvės plano pavyzdys
Norint įrengti piceriją, reikia didesnės virtuvės nei sushi restoranui, kadangi naudojamos picų krosnys, daugiau šaldytuvų, didesni paviršiai ir pan. Kaip pavyzdį įmonės vadovas pateikia vienos iš picerijų planą. Šiame plane nepavaizduota klientų erdvė, tačiau ji gali būti tokio dydžio, kokius žmonių srautus planuoja savininkas. Pagal tokį planą klientų zona galėtų būti panašaus dydžio kaip ir virtuvė. Skaičiais 1, 3, 5, 7, 18 pažymėti stalai su plautuvėmis, 2, 24, 25 - nerūdijančio plieno stelažai, 4 , 13, 19 - nerūdijančio plieno stalai, 6 - šaldytuvas, 8 - picų stalas, 9 - šaldomas darbo stalas, 14 - gruzdintuvės, 22 - indų plovimo mašina, o pagrindinis įrenginys pažymėtas 10 numeriu - picų krosnis. Taip pat virtuvėje gausu įvairios technikos: gastronominė, daržovių pjaustyklės, tešlos maišyklė, ledų generatorius, picų tešlos kočioklė, pieno plaktuvas. Šalia virtuvės zonos taip pat įrengtas personalo kambarys su tualetu bei biuro kabinetas, kuriame ramiai gali dirbti restorano administratorius. Kadangi padavėjams tenka daug vaikščioti nešant užsakymus, visur, kur jiems teks eiti, numatytos dvigubos varstomos durys.

Virtuvės ant ratų išprojektavimo pavyzdys
Dar vienas pavyzdys - tik 5 kv. m. virtuvė ant ratų, kuri pritaikyta lietinių blynų kepimui. Nors jos plotas ypač mažas, tačiau ji atitinka visus Valstybinės maisto ir veterinarijos tarnybos reikalavimus. Iš šios priekabos žmonės aptarnaujami iš trijų pusių. Daugiausiai vietos virtuvėje skirta 1 pažymėtai blynkepei ir 5 numeriu pažymėtai marmitai, skirtai sudėti įvairioms salotoms ir blynų įdarui. Virtuvėlėje taip pat yra nerūdijančio plieno stalai (2, 4, 6), vienas iš jų su plautuve (6), termodėžės (3), karšto vandens šildytuvas ir viryklė. Namelio gale įmontuota dujų balionų dėžė. Ant ratų daugiausiai tenka įrengti virtuves, skirtas kebabų, lietinių gamybai. Taip pat populiarėja ledainės bei sushi gaminimo kioskai.

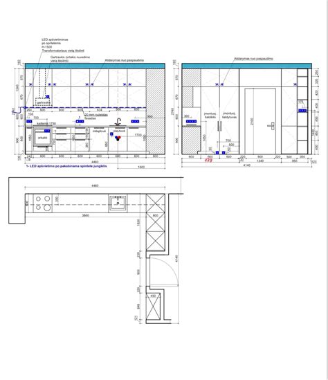
Didelio restorano virtuvės projekto pavyzdys
Vienoms virtuvėms užtenka 5 kv. m., o kitoms reikia ir 30 kartų daugiau vietos. Didelės virtuvės pavyzdys, - tai 140 kv. m. gamybines patalpas turintis restoranas. Tokio dydžio patalpos skirtos didelius žmonių srautus turinčiam restoranui, kuris planuoja organizuoti įvairias šventes, pobūvius. Jose montuojama galinga įranga, konvekcinės krosnys ir, be abejo, galingi bei tinkamai sumontuoti gartraukiai.
Šiame plane aiškiai matomos išskirtos zonos. Per 11 skaičiumi pažymėtą perėjimą, į 2 ir 3 patalpas (pliusinę šaldymo kamerą ir sausų produktų sandėlį) darbuotojai atveža įvairius produktus. Patalpoje Nr. 1 vykdomas pirminis daržovių apdirbimas, kur jos sutvarkomos ir švariai nuplaunamos. Tada produktai paskirstomi į reikiamas patalpas: 4 - mėsos ir žuvies cechas (viena pusė skirta mėsai, kita - žuviai), 5 - miltinių patiekalų zona, 8 - salotų gamybos zona. 7 ir 12 zonose vyksta karštų patiekalų gaminimas, o 8 zonoje gaminamos salotos. 9 ir 10 skaičiais pažymėtos zonos skirtos padavėjams, kur jie atneša ir padeda nešvarius indus ir paima naujus patiekalus, švarius indus, stalo įrankius. Visos darbo zonos sukurtos ir suplanuotos taip, kad darbuotojai nešvaistytų jėgų eidami didelius atstumus, viskas būtų lengvai pasiekiama. Dirbdami ir judėdami jiems paskirtose zonose, kiekvienas žino savo darbo vietą ir nesipainioja kitose zonose dirbantiems kolegoms.

Kaip išsirinkti virtuvės įrangą
Išrinkti įrangą restorano virtuvei nėra taip paprasta kaip atrodo - viskas turi būti apgalvota. Kiekvienas įrengimas turi stovėti reikiamoje vietoje, būti patogus ir kokybiškas. Tačiau universalių taisyklių, kaip turi atrodyti virtuvės įranga - nėra. Kiekvienas atvejis vertinamas atskirai, priklausomai nuo restorano, kavinės koncepcijos, planuojamo klientų srauto, naudojamų puodų tūrio ir pan.
Pavyzdžiui, vienas iš pagrindinių virtuvės prietaisų - viryklė, konvekcinė krosnis, kurios parenkamos priklausomai nuo restorano paskirties, gaminamų patiekalų ir dydžio. Jeigu restorane verdami cepelinai, jame būna dideli lankytojų srautai, rengiamos puotos, vestuvės, tai reikalinga didesnė, galingesnė viryklė su konvekcine krosnimi. Į tokio restorano virtuvę patalpinus 2 degiklių, negalingą viryklę, klientai bus priversti ilgai laukti savo maisto, kils nepasitenkinimas, restoranas gaus blogus atsiliepimus, nes nesukurs geros nuotaikos. Tačiau jeigu restorane vyrauja prabangūs patiekalai, mažos porcijos, nėra didelių lankytojų srautų, tokiam restoranui pakaks ir mažesnės viryklės. Svarbu atkreipti dėmesį ne tik į degiklių skaičių, bet ir į viryklės galingumą. Silpna viryklė prailgins maisto ruošimo laiką, o kai kurių patiekalų gali ir nepavykti pagaminti. Taip pat reikia nuspręsti, ar reikalinga konvekcinė krosnis ar kokios nors kitos, labiau specifinės funkcijos. Viskas priklauso nuo maitinimo įstaigos koncepcijos. Žinodami planus, kas ir kokiais kiekiais bus gaminama virtuvėje, mes galime patarti, kokią įrangą pasirinkti geriausia.
Specialistas taip pat rekomenduoja virtuvei pirkti įrenginius ne po vieną iš 5 skirtingų įmonių, bet viską kartu. Tuomet maitinimo įstaigos savininkas bus garantuotas, kad viskas derės tarpusavyje, o iškilus nenumatytoms problemoms iš karto žinos, į kurią įmonę kreiptis.
Geriausias sprendimas, kai galite vienoje vietoje nusipirkti ne tik visą virtuvėms skirtą įrangą, bet galite įsigyti visą kompleksinį sprendimą - nuo technologinio plano sudarymo, įrangos parinkimo ir montavimo iki virtuvės pristatymo virėjų komandai. Taip už visą virtuvės įrengimą bus atsakinga viena įmonė, taigi ir visus nesklandumus bus galima išspręsti kur kas lengviau. Taip pat rekomenduojama pirkti tik žinomų, patikimų gamintojų įrangą ir vengti kiniškos produkcijos. Pirmas žingsnis, kaip tokius atskirti - internetinė svetainė. Jeigu gamintojas neturi savo internetinės svetainės, tai gali būti ženklas, kad jis nenori savęs reprezentuoti, nori išlikti nepastebėtas ir ateityje gali vengti prisiimti atsakomybę už nekokybiškus gaminius.
Svarbu paminėti, kad automatinės kavinės versija patogi tuo, kad visada galima keisti vietą ir „gaudyti” klientus visame mieste.
Kiti svarbūs aspektai
- Darbuotojai: Darbuotojai turi būti pasitikrinę sveikatą, išklausę privalomą higienos įgūdžių mokymo kursą ir turėti tai patvirtinančius dokumentus: Sveikatos žinių atestavimo pažymėjimą, taip pat asmens medicininę knygelę (sveikatos pasą, forma Nr. 048/a) su gydytojo žyma „leista dirbti“.
- Vietos pasirinkimas: Būtent įstaigos vieta lemia pajamas ir sėkmę. Taigi pirmasis vietos pasirinkimo kriterijus yra praeinamumas. Patyrę verslininkai šiuos rodiklius apibrėžia kaip lankomumą ir konversiją. Paprastai tariant, srautas - tai pro įstaigą praeinančių žmonių skaičius, o konversija - pirkėjų skaičius. Šiuos rodiklius galite išmatuoti stebėdami. Atsižvelkite į vietovės ypatumus: ar joje yra verslo centrų ir biurų, universitetų, ar viešų poilsio ir pasivaikščiojimo vietų.
Laikantis visų šių reikalavimų ir rekomendacijų, galima užtikrinti sklandų kavinės veikimą, maisto saugą ir klientų pasitenkinimą.