Planuojant ar statant nuosavą būstą, ypač jei jis neviršija 80 kv. m, svarbu žinoti, kaip teisingai apskaičiuojamas gyvenamasis plotas. Tai padės teisingai įvertinti būsto dydį, planuoti erdves ir laikytis galiojančių statybos normų. Be to, tai padės ne tik tinkamai suplanuoti būsimas patalpas, bet ir įsitikinti, ar statybai nereikalingas specialus leidimas. Šiame straipsnyje išsamiai aptarsime, kaip apskaičiuojamas namo plotas, kokie reikalavimai taikomi nesudėtingiems statiniams ir ką reikia žinoti projektuojant tokį būstą.

Nesudėtingi statiniai: kas tai?
Pagal STR 1.01.07:2010 „NESUDĖTINGI STATINIAI“ apibrėžimą, jus domina II gr. nesudėtingas statinys - gyvenamasis namas iki 80 kv. m bendro ploto ir 8,5 m aukščio. Svarbu suprasti, kas įeina į šį plotą ir kaip jis skaičiuojamas.
Kaip skaičiuojamas plotas?
Bene dažniausiai užduodamas klausimas - kaip skaičiuojamas plotas? Kas įeina į 80 kv. m plotą? Ar galima įsirengti rūsį ar pastogę? Ar skaičiuojasi garažas?
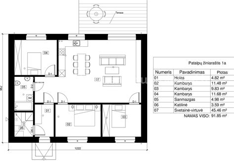
Nesudėtingų statinių iki 80 kv. m atveju, skaičiuojamas bendras visų antžeminės dalies patalpų plotas. Patalpa - sienomis ir kitomis atitvaromis apribota nustatytos paskirties erdvė.
Patalpų plotų skaičiavimai nurodyti Kadastrinių matavimų ir kadastro duomenų surinkimo bei tikslinimo taisyklėse:
Gyvenamųjų patalpų bendras plotas (Pgp) apskaičiuojamas pagal formulę:
Pgp = Pg + Pp + Pv + Pkt
Kur:
- Pg - gyvenamasis plotas
- Pp - pagalbinis plotas: pagalbinis naudingas plotas; pagalbinis nenaudingas plotas
- Pv - verslo plotas
- Pkt - kitas plotas: rūsio (pusrūsio) patalpų plotas; garažo patalpų plotas.
PASTABA: Rūsio (pusrūsio) ar garažo patalpos, į kurias patenkama tiesiog iš gyvenamosios patalpos, įskaičiuojamos į šios gyvenamosios patalpos bendrąjį plotą.
Nors rūsio plotas skaičiuojamas į pastato bendrąjį plotą, nesudėtingas II-os gr. statinys - gyvenamasis namas - yra ne daugiau kaip 80 kv. m visų statinio patalpų ploto, skaičiuojant tik antžeminę dalį. Kitaip tariant, į 80 kv. m plotą įeina visos šiltos ir šaltos patalpos (įskaitant pastogės patalpas ir garažą), išskyrus rūsį ir terasas.
Patalpų plotas skaičiuojamas tarp pastato vidinių sienų. II gr. statinio 80m2 plotas yra visų patalpų suma. Svarbu atkreipti dėmesį, kad didžiausias leistinas atstumas tarp laikančių sienų turi būti ne didesnis nei 6 m, o pastato aukštis - iki 8,5 m.
Bendras plotas pagal STR 1.05.06:2010:
Pagal STR 1.05.06:2010 "STATINIO PROJEKTAVIMAS" (2015 m. birželio 22 d. pakeitimas):
6.10 pastato bendras plotas - visų patalpų ir jų priklausinių (balkonų, lodžų, ant stogo numatomų terasų, verandų ir kitų priklausinių) plotų suma, m2. Į bendrą plotą neįskaitomas uždarų laiptinių, atvirų ar pusiau atvirų laiptinių laiptotakių ir tarpinių aikštelių, liftų šachtų plotas.
Tiksliuosius skaičiavimus atlieka matininkai ruošdami inventorinę bylą.
Ar reikalingas leidimas?
Rašytinis pritarimas supaprastintam statybos projektui privalomas statant II grupės nesudėtingą statinį - mieste, konservacinio prioriteto ar kompleksinėje saugomoje teritorijoje, kultūros paveldo objekto teritorijoje, kultūros paveldo vietovėje.
Net ir tuo atveju, kai statybą leidžiantis dokumentas nėra privalomas, rekomenduojama kreiptis į architektą, kuris įvertins esamą sklypo situaciją, patars, kaip geriausia organizuoti vidaus erdves, kokias pasirinkti statybines medžiagas ir konstrukcinius sprendinius, esant poreikiui paruoš kokybišką interjero projektą pagal jūsų poreikius ir finansines galimybes.
Reikalavimai projektuotojams
Nesudėtingų statinių projektavimui, statybai, statinio projekto vykdymo priežiūrai turi teisę vadovauti fizinis asmuo, baigęs aukštojo ar specialiojo vidurinio mokslo studijas ir įgijęs architektūros, geologijos ir minerologijos mokslų studijų krypčių, technologijos mokslų studijų srities ar šioms kryptims ir sričiai prilyginamą išsilavinimą.
Šio išsilavinimo nereikia, kai supaprastintas statinio projektas rengiamas pasinaudojant kito tokio statinio (kai išlaikomi statinio matmenys ir statybos produktai) supaprastinto projekto sprendiniais; tokiu atveju valstybės tarnautojams pateikiamas ir statinio supaprastintas projektas, kurio sprendiniais pasinaudota.
Kiti svarbūs aspektai
Projektuojant daugiabučius gyvenamuosius namus, bent vienas kambarys bute turi būti ne mažesnis kaip 16 kvad. m. Bendras vonios ir tualeto plotas - ne mažesnis kaip 4 kvad. m. Vienam žmogui turi tekti ne mažiau kaip 14 kvad. m.
Būsto naudingasis plotas - tai bendras gyvenamųjų kambarių ir kitų patalpų (virtuvių, sanitarinių mazgų, koridorių, įstatytų spintų, šildomų lodžijų ar kitų pagalbinių patalpų) grindų plotas.
Kiekviename daugiabučiame name turi būti suprojektuoti žmonėms su negalia skirti butai, kurie turi sudaryti ne mažiau kaip 5 proc. visų butų. Šis reikalavimas taikomas tiems namams, kurie yra ne toliau kaip 500 m kelio pėsčiomis iki viešojo transporto stotelių. Pastatuose be lifto butai žmonėms su negalia turi būti planuojami pirmajame aukšte.
Nuo 2014 m. jau visi Lietuvoje naujai statomi pastatai turi atitikti B energinio naudingumo klasę, o nuo 2016 m. - ne žemesnę kaip A klasę.
Pastatų plotų ir tūrių skaičiavimo tvarka
Pastatų plotų skaičiavimo tvarką nustato ORGANIZACINIS TVARKOMASIS STATYBOS TECHNINIS REGLAMENTAS STR 1.14.01:1999 PASTATŲ PLOTŲ IR TŪRIŲ SKAIČIAVIMO TVARKA.
"17. Gyvenamojo pastato bendrasis plotas yra visų jame esančių patalpų, tarp jų - ir funkcionaliai susietuose priestatuose, plotų suma."
Skaičiuojamos visos patalpos, kurios turi keturias sienas. Garažas, jeigu jis sublokuotas, taip pat. Neskaičiuojama terasa, rūsys, pastogė. Pastogėje į plotą įskaičiuojamos patalpos ar jų dalys, kurios turi aukštį ne mažiau kaip 1,60 m.
Į plotą įskaičiuojamas iš atitvarų plotas. Tiksliuosius skaičiavimus atlieka matininkai ruošdami inventorinę bylą.

Skirtumas tarp bendro ir naudingo ploto
Šiame straipsnyje išnagrinėsime, kuo skiriasi bendras ir naudingas buto plotas, remiantis Lietuvos Respublikos teisės aktais ir reglamentais.
Pagal Statybos techninio reglamento STR 1.05.06:2010 „Statinio projektavimas“ 2 straipsnio 6.10 papunktį:
Pastato bendras plotas - visų patalpų ir jų priklausinių (balkonų, lodžų, ant stogo numatomų terasų, verandų ir kitų priklausinių) plotų suma, m2. Į bendrą plotą neįskaitomas uždarų laiptinių, atvirų ar pusiau atvirų laiptinių laiptotakių ir tarpinių aikštelių, liftų šachtų plotas.
Tuo tarpu, 6.11 papunktis apibrėžia:
Pastato naudingas plotas - visų šiltomis atitvaromis atitveriamų ar atitvertų patalpų plotų suma, m2.
Apibendrinant, galima teigti, kad į bendrą plotą įeina visos buto patalpos ir jų priklausiniai, o į naudingą - tik tos patalpos, kurios yra apšildomos ir atitvertos.
Pagal Statybos techninio reglamento STR 2.02.01:2004 „Gyvenamieji pastatai“ 4.12 punktą:
Būsto naudingasis plotas - gyvenamųjų kambarių ir kitų būsto patalpų (virtuvių, sanitarinių mazgų, koridorių, įstatytų spintų, šildomų lodžijų ir kitų šildomų pagalbinių patalpų) suminis grindų plotas.
Į naudingąjį plotą neįeina balkonų, lodžijų, terasų, nešildomų rūsių grindų plotas.
Pagrindiniai skirtumai tarp naudingojo ir gyvenamojo ploto
Apibendrinant, štai pagrindiniai skirtumai tarp naudingojo ir gyvenamojo ploto:
| Savybė | Naudingasis plotas | Gyvenamasis plotas |
|---|---|---|
| Apibrėžimas | Bendras gyvenamųjų kambarių ir kitų patalpų grindų plotas (virtuvės, san. mazgai, koridoriai ir kt.) | Gyventi skirtų uždarų ar pusiau uždarų patalpų plotų suma (svetainės, miegamieji, virtuvės ir kt.) |
| Įeina | Visos šildomos patalpos | Tik gyvenamieji kambariai |
| Neeina | Balkonai, lodžijos, terasos, nešildomi rūsiai | Pagalbinės patalpos (koridoriai, san. mazgai ir pan.) |
Naudingi patalpų ploto terminai
Šioje lentelėje pateikiami pagrindiniai terminai, susiję su patalpų plotu, ir jų apibrėžimai.
| Terminas | Apibrėžimas |
|---|---|
| Pastato bendras plotas | Visų patalpų ir jų priklausinių (balkonų, lodžų, terasų, verandų ir kitų priklausinių) plotų suma, m2. |
| Pastato naudingas plotas | Visų šiltomis atitvaromis atitveriamų ar atitvertų patalpų plotų suma, m2. |
| Gyvenamosios patalpos plotas | Gyventi skirtų uždarų ar pusiau uždarų patalpų plotų suma. |
| Pagalbinis plotas | Visų gyvenamųjų patalpų, išskyrus kambarius, verslo patalpas, rūsius (pusrūsius) ir garažus, plotų suma. |
KAIP PASIRINKTI PLYTELES REMONTUI 2025 METAIS! KAIP TEISINGAI APSKAIČIUOTI PLYTELIŲ KIEKĮ REMONTUI!
tags: #gyvenamojo #namo #bendras #plotas