Svajojate apie jaukų ir funkcionalų būstą, tačiau turite siaurą sklypą? Vieno aukšto namo projektai gali būti puikus sprendimas! Šiame straipsnyje aptarsime, kaip pasirinkti tinkamą projektą, atsižvelgiant į sklypo ypatumus, šeimos poreikius ir finansines galimybes.

Kodėl Verta Rinktis Vieno Aukšto Namą Siauram Sklypui?
Vieno aukšto namai populiarūs dėl patogumo ir paprastumo. Tokiuose namuose nereikia naudoti laiptų, visi kambariai yra viename lygyje, todėl šie sprendimai itin patrauklūs vyresnio amžiaus žmonėms ar šeimoms su mažais vaikais.
Vieno Aukšto Namo Privalumai:
- Patogus išplanavimas be laiptų
- Puikiai tinka vyresnio amžiaus žmonėms ir šeimoms su mažais vaikais
- Lengvesnė priežiūra ir valymas
- Ekonomiškas šildymas
Vieno Aukšto Namo Trūkumai:
- Gali reikėti didesnio sklypo
- Privatumo trūkumas, jei namas yra arti kaimynų
Kaip Pasirinkti Tinkamą Namo Projektą Siauram Sklypui?
Renkantis namo projektą 4 arų sklypui, verta kreipti dėmesį į kompaktiškumą, tuomet namas gali būti pritaikytas net ir 5 asmenų šeimai, o jo plotas gali būti didesnis nei 100 kvadratinių metrų. 6 arų sklypas miestuose ilgą laiką buvo laikomas standartu, todėl jame tikrai puikiai suplanuosite tiek vieno, tiek dviejų aukštų namą, skirtą ne tik dviejų asmenų, bet ir didesnei šeimai. Namų projektai pailgam sklypui taip pat gali būti kuo įvairiausi.
Pavyzdžiui siauram, pailgam sklypui puikiausiai tiks mūsų populiarus projektas „Karolis“, kurio plotis nesiekia net 10 metrų, tačiau bendras plotas - kone 240 kvadratų.
Vieno aukšto namo projektas -195,8m² ID 149

Svarbūs Aspektai Renkantis Projektą:
- Sklypo dydis ir forma: Įvertinkite sklypo matmenis, formą ir reljefą.
- Šeimos poreikiai: Apgalvokite, kiek kambarių jums reikia, kokios erdvės jums svarbios.
- Biudžetas: Nustatykite sumą, kurią galite skirti statyboms ir ilgalaikėms išlaidoms.
- Energinis efektyvumas: Rinkitės projektus, kurie numato energijos taupymo sprendimus.
- Išplanavimas: Apgalvokite patalpų išdėstymą, judėjimo logiką ir sandėliavimo vietas.
Populiarūs Vieno Aukšto Namų Projektai
Raimondas 1. Puikus vieno aukšto namo projektas su garažu. Tinka siauriems sklypams. Funkcionalus išplanavimas. Bendrasis plotas 166.98 m2 Gyvenamasis plotas 82.73 m2 Užstatymo plotas...
Šitas namas geriausiai tinka statyti mažų sklypų (4a) didelio tankumo kvartaluose. Šio namo pagrindinė idėja - dvi svetainės: vasarinė - pats sklypas su lauko virtuve, ir žieminė svetainė...
Pristatome gyvenamojo namo projektą pavadinimu Ema. Tai ypač nebrangios statybos, nesudėtingų konstrukcijų namo projektas, kuris tiks dviejų ar trijų asmenų šeimai. Name suprojektuoti du miegamieji,...
Neonas - inovatyviais sprendimais pulsuojantis, išraiškingas, ekspresyvus ir turintis nesulaikomai veržlų charakterį namas.Tai ne ateities fantastinis namas, o racionaliais konstrukciniais sprendimais...
Namo projektas "Benigna" Bendras plotas 171.11 m2 Gyvenamasis plotas 90.98 m2 Užstatymo plotas...
Projektas Laimonas - tai puikus pasirinkimas dviejų - keturių asmenų šeimai. Tai nedidelio ploto, paprastų konstrukcijų ir nesudėtingos statybos namas. Pasižymi ekonominiu išlaikymu, ilgaamže...
Namo projektas „Aurelijus” išsiskiria moderniomis linijomis, išraiškinga architektūra, neįprasta apdaila ir jaukia svetaine su valgomuoju. Dideli langai leis mėgautis vaizdu už lango, o įrengtas...
Namo projektas „Vita”. Erdvus šiuolaikiškas vieno aukšto namo projektas. Geriausiai tinkantis keturių asmenų patogiam gyvenimui. Planas apima garažą vienam automobiliui. Bendras plotas...
Namo projektas „Ugnė” - vienas mažiausių vieno aukšto namo planų, pritaikytas trijų asmenų patogiam bei ekonomiškam gyvenimui. Bendrasis plotas104 m2 Gyvenamasis plotas72.45...
Titas. Nedidelis, vieno aukšto namo projektas keturių asmenų šeimai. Papildomos erdvės suteiks didžiulė vitrina svetainėje. Šioje patalpoje nėra horizontalaus perdengimo, tad turėsite aukštas...
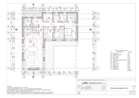
Namo Išplanavimo Pavyzdys (Projektas "Raimondas 1")
Puikus vieno aukšto namo projektas su garažu. Tinka siauriems sklypams. Funkcionalus išplanavimas. Bendrasis plotas 166.98 m2 Gyvenamasis plotas 82.73 m2 Užstatymo plotas 231 m2
- Tambūras 5.53 m2
- Prieškambaris 9.44 m2
- Virtuvė 8.02 m2
- Sandėliukas 1.89 m2
- Valgomasis 7.05 m2
- Svetainė 26.09 m2
- Koridorius 10.45 m2
- San. mazgas 4.33 m2
- Kambarys 13.17 m2
- Kambarys 13.33 m2
- Miegamasis 15.07 m2
- San. mazgas 7.5 m2
- Drabužinė 8.32 m2
- Katilinė 8.52 m2
- Garažas 28.27 m2
Finansiniai Aspektai ir Energijos Efektyvumas
Namų projektai neatsiejami nuo finansinio planavimo, nes net pats gražiausias projektas praras prasmę, jei jo įgyvendinimas viršys šeimos biudžetą. Pirmasis žingsnis - nustatyti, kokią sumą galima skirti ne tik statyboms, bet ir ilgalaikėms išlaidoms. Kompaktiški namų projektai, nors pradžioje gali atrodyti kuklesni, ilgainiui leidžia sutaupyti nemažai lėšų.
Šiuolaikiniai namų projektai visada prasideda nuo energijos efektyvumo logikos: kiek šilumos praras pastatas, kaip ją susigrąžins ir kiek energijos pats pasigamins. Namų projektai, kurie iškart numato rekuperaciją, šilumos siurblius, grindinį šildymą ir žemesnės temperatūros režimus, ilgainiui atsiperka komfortu ir mažesnėmis išlaidomis. Saulės elektrinei verta suplanuoti teisingą stogo plokštumą, laidų trasas ir inverterio vietą dar projektavimo metu.

Individualus Ar Kartotinis Projektas?
Kartotinis namo projektas - tai jau sukurtas projektas, kurio sprendimai orientuoti į daugumos poreikius. Pagrindinis kartotinio namo projekto pranašumas yra jo kaina, nes ji gali būti net iki kelių kartų mažesnė nei individualaus namo projekto. Taip pat vilioja galimybė labai greitai gauti užsakytą projektą (per 5 darbo dienas) ir pradėti statybas. Užsisakę kartotinį projektą Jūs jau iškarto žinote, kaip atrodys Jūsų būsimas namas. Kartotiniai namų projektai dažnai būna racionalūs, be ypatingų konstrukcinių sprendimų.
Kartotinio Projekto Privalumai:
- Mažesnė kaina
- Greitas gavimas
- Žinomas rezultatas
Individualaus Projekto Privalumai:
- Pritaikytas individualiems poreikiams
- Galimybė įgyvendinti unikalias idėjas
- Optimalus sklypo išnaudojimas
Statybos Leidimas ir Projekto Koregavimas
Nutarus su mumis bendradarbiauti, viską pradedame nuo jūsų norų ir poreikių išgryninimo. Suformulavus užduotį, pradedame kurti pirmuosius pasiūlymus, kaip gali atrodyti jūsų namas. Parengiame planus, pjūvius bei 3D vizualizacijas, kurie padeda lengvai įsivaizduoti realų vaizdą. Gavus komentarus ir pastabas, projektinius pasiūlymus keičiame ir deriname tol, kol būna pasiektas tiek jus, tiek mus tenkinantis rezultatas.
Suderinus projektinius pasiūlymus, pradedami detalizuoti architektūriniai ir techniniai sprendiniai. Visų projekto dalyvių bei užsakovų pasirašyta byla keliama į Infostatybą. Kai projektas per kelias dienas užregistruojamas, 10 d.d. jį tikrina gausybė institucijų. Gavus pastabų, projektas atmetamas ir mes jį kiek įmanoma greičiau koreguojame. Pakoregavus projektą, jis vėl keliamas į sistemą, užregistravus, po dar 10 d.d. gaunamas statybos leidimas.
Nedidelius projekto pakeitimus galite įvesti savo nuožiūra statybų metu. Šie pakeitimai gali būti padaryti Jūsų statybininko, nekeičiant namo projekto. Keičiant durų ar langų vietą, vidaus pertvarinių sienų išdėstymą, šalinant ar keičiant langus, virtuvės formą - namo projekto keitimas nėra būtinas, nes šie pakeitimai nėra sudėtingi.
EKIE Namai: Ekonomiški, Kokybiški, Inovatyvūs, Ekologiški
2016 dienos šviesą išvydo pirmasis Lietuvoje sertifikuotas A++ klasės gyvenamasis namas EKIE - tai Ekonomiškas, Kokybiškas, Inovatyvus, Ekologiškas namas, galintis tapti Jūsų svajonių namu. Mūriniai namai Atrinkome optimaliausias pamato, mūro, stogo įrengimo technologijas bei apšiltinimo medžiagas.
Esame vieni iš kelių įmonių Lietuvoje, gebančių projektuoti ir statyti A, A+, A++ klasės ir pasyvius namus. A+ klasės namai bus privalomi nuo 2018 metų, o A++ klasės nuo 2021 Mūsų patyrusių ekspertų komanda, visoje Lietuvoje, suprojektuoja, pastato ir įrengia unikalius, patikimus, aukštos kokybės namus, tiksliai atitinkančius Jūsų poreikius.
EKIE Namų Privalumai:
- Ekonomiškumas
- Kokybė
- Inovacijos
- Ekologiškumas
Tikimės, kad šis straipsnis padės Jums pasirinkti tinkamą vieno aukšto namo projektą siauram sklypui! Atminkite, kad svarbiausia - atsižvelgti į savo poreikius, galimybes ir sklypo ypatumus.