Bendrasis plotas yra vienas svarbiausių rodiklių, nustatant nekilnojamojo turto vertę ir tinkamumą. Šiame straipsnyje aptarsime, kaip skaičiuojamas bendrasis plotas įvairiuose pastatuose ir butuose Lietuvoje, pateiksime praktinių pavyzdžių ir patarimų.

Nesudėtingi statiniai: kas tai?
Pagal STR 1.01.07:2010 „NESUDĖTINGI STATINIAI“ apibrėžimą, jus domina II gr. nesudėtingas statinys - gyvenamasis namas iki 80 kv. m bendro ploto ir 8,5 m aukščio. Svarbu suprasti, kas įeina į šį plotą ir kaip jis skaičiuojamas.
II gr. statinio 80m2 plotas yra visų patalpų suma. Svarbu atkreipti dėmesį, kad didžiausias leistinas atstumas tarp laikančių sienų turi būti ne didesnis nei 6 m, o pastato aukštis - iki 8,5 m.
Kaip skaičiuojamas plotas?
Bene dažniausiai užduodamas klausimas - kaip skaičiuojamas plotas? Kas įeina į 80 kv. m plotą? Ar galima įsirengti rūsį ar pastogę? Ar skaičiuojasi garažas?
Nesudėtingų statinių iki 80 kv. m atveju, skaičiuojamas bendras visų antžeminės dalies patalpų plotas. Patalpa - sienomis ir kitomis atitvaromis apribota nustatytos paskirties erdvė.
Patalpų plotų skaičiavimai nurodyti Kadastrinių matavimų ir kadastro duomenų surinkimo bei tikslinimo taisyklėse:
Gyvenamųjų patalpų bendras plotas (Pgp) apskaičiuojamas pagal formulę:
Pgp = Pg + Pp + Pv + Pkt
Kur:
- Pg - gyvenamasis plotas;
- Pp - pagalbinis plotas: pagalbinis naudingas plotas; pagalbinis nenaudingas plotas;
- Pv - verslo plotas;
- Pkt - kitas plotas: rūsio (pusrūsio) patalpų plotas; garažo patalpų plotas.
PASTABA: Rūsio (pusrūsio) ar garažo patalpos, į kurias patenkama tiesiog iš gyvenamosios patalpos, įskaičiuojamos į šios gyvenamosios patalpos bendrąjį plotą.
Nors rūsio plotas skaičiuojamas į pastato bendrąjį plotą, nesudėtingas II-os gr. statinys - gyvenamasis namas - yra ne daugiau kaip 80 kv. m visų statinio patalpų ploto, skaičiuojant tik antžeminę dalį. Kitaip tariant, į 80 kv. m plotą įeina visos šiltos ir šaltos patalpos (įskaitant pastogės patalpas ir garažą), išskyrus rūsį ir terasas.
Patalpų plotas skaičiuojamas tarp pastato vidinių sienų.
Bendras plotas pagal STR 1.05.06:2010
Pagal STR 1.05.06:2010 "STATINIO PROJEKTAVIMAS" (2015 m. birželio 22 d. pakeitimas):
6.10 pastato bendras plotas - visų patalpų ir jų priklausinių (balkonų, lodžų, ant stogo numatomų terasų, verandų ir kitų priklausinių) plotų suma, m2. Į bendrą plotą neįskaitomas uždarų laiptinių, atvirų ar pusiau atvirų laiptinių laiptotakių ir tarpinių aikštelių, liftų šachtų plotas.

Ar reikalingas leidimas?
Net ir tuo atveju, kai statybą leidžiantis dokumentas nėra privalomas, rekomenduojama kreiptis į architektą, kuris įvertins esamą sklypo situaciją, patars, kaip geriausia organizuoti vidaus erdves, kokias pasirinkti statybines medžiagas ir konstrukcinius sprendinius, esant poreikiui paruoš kokybišką interjero projektą pagal jūsų poreikius ir finansines galimybes.
Rašytinis pritarimas supaprastintam statybos projektui privalomas statant II grupės nesudėtingą statinį - mieste, konservacinio prioriteto ar kompleksinėje saugomoje teritorijoje, kultūros paveldo objekto teritorijoje, kultūros paveldo vietovėje.
Reikalavimai projektuotojams
Nesudėtingų statinių projektavimui, statybai, statinio projekto vykdymo priežiūrai turi teisę vadovauti fizinis asmuo, baigęs aukštojo ar specialiojo vidurinio mokslo studijas ir įgijęs architektūros, geologijos ir minerologijos mokslų studijų krypčių, technologijos mokslų studijų srities ar šioms kryptims ir sričiai prilyginamą išsilavinimą.
Šio išsilavinimo nereikia, kai supaprastintas statinio projektas rengiamas pasinaudojant kito tokio statinio (kai išlaikomi statinio matmenys ir statybos produktai) supaprastinto projekto sprendiniais; tokiu atveju valstybės tarnautojams pateikiamas ir statinio supaprastintas projektas, kurio sprendiniais pasinaudota.
Skirtumas tarp bendro ir naudingo ploto
Renkantis būstą, svarbu atkreipti dėmesį ne tik į kainą, bet ir į tai, kas įeina į bendrą ir naudingą plotą. Šie du rodikliai yra skirtingi ir gali turėti įtakos mokesčiams bei pačios gyvenamosios erdvės suvokimui.
Šiame straipsnyje išnagrinėsime, kuo skiriasi bendras ir naudingas buto plotas, remiantis Lietuvos Respublikos teisės aktais ir reglamentais.
Pagal Statybos techninio reglamento STR 1.05.06:2010 „Statinio projektavimas“ 2 straipsnio 6.10 papunktį:
Pastato bendras plotas - visų patalpų ir jų priklausinių (balkonų, lodžų, ant stogo numatomų terasų, verandų ir kitų priklausinių) plotų suma, m2. Į bendrą plotą neįskaitomas uždarų laiptinių, atvirų ar pusiau atvirų laiptinių laiptotakių ir tarpinių aikštelių, liftų šachtų plotas.
Tuo tarpu, 6.11 papunktis apibrėžia:
Pastato naudingas plotas - visų šiltomis atitvaromis atitveriamų ar atitvertų patalpų plotų suma, m2.
Apibendrinant, galima teigti, kad į bendrą plotą įeina visos buto patalpos ir jų priklausiniai, o į naudingą - tik tos patalpos, kurios yra apšildomos ir atitvertos.
Pagal Statybos techninio reglamento STR 2.02.01:2004 „Gyvenamieji pastatai“ 4.12 punktą:
Būsto naudingasis plotas - gyvenamųjų kambarių ir kitų būsto patalpų (virtuvių, sanitarinių mazgų, koridorių, įstatytų spintų, šildomų lodžijų ir kitų šildomų pagalbinių patalpų) suminis grindų plotas.
Į naudingąjį plotą neįeina balkonų, lodžijų, terasų, nešildomų rūsių grindų plotas.
Nekilnojamojo turto objektų kadastrinių matavimų ir kadastro duomenų surinkimo bei tikslinimo taisyklės nustato, kad: Gyvenamosios patalpos plotas skaičiuojamas kaip gyventi skirtų uždarų ar pusiau uždarų patalpų plotų suma. Ppg - pagrindinį plotą sudaro visos patalpos, išskyrus patalpas, kurios įskaitomos į pagalbinį plotą. Pagalbinis plotas - visų gyvenamųjų patalpų, išskyrus kambarius, verslo patalpas, rūsius (pusrūsius) ir garažus, plotų suma. Naudingasis plotas - tai bendras gyvenamųjų kambarių ir kitų patalpų (virtuvių, sanitarinių mazgų, koridorių, įstatytų spintų, šildomų lodžijų ar kitų pagalbinių patalpų) grindų plotas.
Projektuojant daugiabučius gyvenamuosius namus, bent vienas kambarys bute turi būti ne mažesnis kaip 16 kvad. m, bendras vonios ir tualeto plotas - ne mažesnis kaip 4 kvad. m, o vienam žmogui turi tekti ne mažiau kaip 14 kvad. m.
Pastatų plotų skaičiavimo tvarką nustato ORGANIZACINIS TVARKOMASIS STATYBOS TECHNINIS REGLAMENTAS STR 1.14.01:1999 PASTATŲ PLOTŲ IR TŪRIŲ SKAIČIAVIMO TVARKA.
"17. Gyvenamojo pastato bendrasis plotas yra visų jame esančių patalpų, tarp jų - ir funkcionaliai susietuose priestatuose, plotų suma."
Skaičiuojamos visos patalpos, kurios turi keturias sienas. Garažas, jeigu jis sublokuotas, taip pat. Neskaičiuojama terasa, rūsys, pastogė. Pastogėje į plotą įskaičiuojamos patalpos ar jų dalys, kurios turi aukštį ne mažiau kaip 1,60 m.
Į plotą įskaičiuojamas iš atitvarų plotas. Tiksliuosius skaičiavimus atlieka matininkai ruošdami inventorinę bylą.
Svarbūs aspektai perkant būstą
Renkantis naujos statybos būstą, būtina atkreipti dėmesį į tai, ką vystytojas nurodo kaip parduodamo būsto naudingąjį plotą. Visuomet rekomenduojama prašyti naudingąjį būsto plotą įrodančių dokumentų, pvz., buto plano.
Buto plane svarbu pastebėti, ar jame nėra įtrauktos papildomos ar pagalbinės erdvės, tokios kaip balkonas ir terasa ar sandėliukas.
Ekspertai pabrėžia, kad būtina prašyti būsto plano. Įprastai tokiame dokumente nurodomas ne tik buto išdėstymas, bet ir judėjimo srautai.
Svarbu iš anksto žinoti, kad pastačius pastatą, viduryje buto neatsiras atraminė kolona, kuri, be abejonės, mažintų buto plotą.
Visi būsto pirkimo proceso metu kylantys klausimai turi būti sprendžiami iki pagrindinės sutarties pasirašymo.
Butų Bendrojo Ploto Skaičiavimas
Nagrinėjant butų pavyzdžius, svarbu atkreipti dėmesį į tai, kas įeina į bendrą plotą. Štai keletas pavyzdžių iš Lietuvos nekilnojamojo turto rinkos:
- Senamiestis, Trakų g.: 2 kambarių buto bendras plotas - 75.56 kv.m.
- Senamiestis, Sodų g.: 2 kambarių buto bendras plotas - 68 kv.m.
- Baltupiai: Nuostabaus 2 kambarių buto bendras plotas - 53 kv.m. Svetainė apjungta su virtuvės zona - 28 kv.m, miegamasis izoliuotas - 15,5 kv.m.
- Antakalnis, P. Vileišio g.: 2 kambarių buto bendras plotas - 46 kv.m.
- Žvėrynas, Pūšų g.: 2 kambarių buto bendras plotas - 43,10 kv.m. Kambariai pereinami - 15,76 ir 13,15 kv.m, virtuvė - 7,79 kv.m.
- Centras, J. Jasinskio g.: 1,5 kambario buto bendras plotas - 37,58 kv.m. Kambariai - 7,48 ir 21,51 kv.m, virtuvė - 8,5 kv.m.
- Šnipiškės, Apkasų g.: Buto bendras plotas - 44 kv.m. Kambariai 17 kv.m. ir 14 kv.m., vienas pereinamas. Virtuvė - 5,3 kv.m.
- Lentvaris, Klevų al.: 2 kambarių buto bendras plotas - 47 kv.m. Pagal eksplikaciją vietuvės zona - 22,46 kv.m; kambarys - 19,27 kv.m., sanmazgas - 5,44 kv.m.
Svarbu atkreipti dėmesį, kad bendras plotas apima visas buto patalpas.
Namo Bendrojo Ploto Skaičiavimas
Skaičiuojant namo bendrą plotą, būtina atsižvelgti į visų patalpų plotus, įskaitant šildomas ir nešildomas patalpas visuose aukštuose.
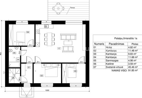
Pavyzdys: Vienaukštis Namas su Garažu "Rasa"
Šiame name su keturšlaičiu stogu, komfortiškai gali gyventi 4-5 asmenų šeima. Bendrasis namo patalpų plotas - 163,79 m2, gyvenamas plotas - 96,99 m2. Pastate suprojektuota dienos, poilsio ir ūkinė zonos.
- Dienos zona: Didelė svetainė, virtuvė-valgomasis, sanmazgas, koridorius-holas, drabužinė.
- Poilsio zona: Miegamieji, sanmazgas.
- Ūkinė zona: Katilinė ir garažas.
Gyvenamojo namo statyba yra nesudėtinga ir ekonomiška dėl parinktų paprastų konstrukcijų ir sprendinių. Kadangi energinio naudingumo reikalavimai aukšti, klasikinės statybos sprendiniai rinkai tampa ne tokie patrauklūs ir priimtini.
Pavyzdys: Dviejų Aukštų Namas su Garažu
Šis projektas pasižymi nedideliu užstatymo plotu, todėl gali būti įgyvendinamas ir nedideliame žemės sklype. Du namo aukštai išskirti į atskirus funkcinius vienetus - bendros ir privačios veiklos zonas.
- Gyvenamas plotas: 83.27 kv. m
- Naudingas plotas: 145.34 kv. m
- Bendras plotas: 174.28 kv. m
- Užstatytas plotas: 137 kv. m
Toks išplanavimas sukuria idealią aplinką tiek individualiam darbui, poilsiui, tiek bendravimui, nekeliant bereikalingos sumaišties.
Sodo Namelio Kvadratūros Skaičiavimas
Planuojant sodo namelį, svarbu žinoti, kaip skaičiuojama jo kvadratūra. Jei statinys neviršija 80 m2, skaičiuojami tik vidinių antžeminių patalpų plotai. Rūsys ir pavėsinė į bendrą plotą neįskaičiuojami. Mansardinių patalpų plotas skaičiuojasi nuo 1,6 m aukščio.
Pagal STR 1.14.01:1999 "Pastatų plotų ir tūrių skaičiavimo tvarką", gyvenamojo pastato bendrasis plotas yra visų jame esančių patalpų plotų suma, įskaitant funkcionaliai susietus priestatus.
Svarbu: Rūsys neįsiskaičiuoja į bendrą plotą. Pavėsinė neįskaičiuojama, nes tai nėra patalpa.
Ventiliuojamo fasado sienos, atitinkančios A++ reikalavimus, yra plonesnės už įprastines konstrukcijas, todėl išnaudojamas didesnis bendrasis vidaus patalpų plotas. Naudojamas plienas yra 100 % perdirbama medžiaga, atitinka žiedinės ekonomikos principus ir yra lengvai transportuojamas.
LPPK privalumai:
- Lengvumas ir greitas surinkimas
- Didesnis naudingas vidaus patalpų plotas
- Ekologiškumas (100% perdirbamas plienas)
- Atitinka A++ energinio naudingumo reikalavimus
Išmanus Wi - Fi kambario temperatūros termometras. Eltis LT
Bendrojo Ploto Skaičiavimo Apibendrinimas
Norint teisingai apskaičiuoti bendrąjį plotą, būtina atsižvelgti į visų patalpų plotus, įskaitant šildomas ir nešildomas, esančias visuose aukštuose (išskyrus rūsį). Taip pat svarbu atkreipti dėmesį į specifinius reikalavimus, taikomus mansardoms ir kitoms nestandartinėms patalpoms.
Pagrindiniai Aspektai
- Butai: Į bendrą plotą įeina visos buto patalpos.
- Namas: Sumuojami visų aukštų patalpų plotai (išskyrus rūsį).
- Sodo namelis: Skaičiuojami tik vidinių antžeminių patalpų plotai (iki 80 m2).
- LPPK: Leidžia išnaudoti didesnį naudingą vidaus patalpų plotą dėl plonesnių sienų.
| Pastato Tipas | Įskaičiuojami Plotai | Neįskaičiuojami Plotai |
|---|---|---|
| Butas | Visos buto patalpos | Nėra |
| Namas | Visų aukštų patalpos | Rūsys |
| Sodo namelis | Vidinės antžeminės patalpos (iki 80 m2) | Rūsys, pavėsinė |