Vonios kambario remontas yra viena iš svarbiausių investicijų namuose, kuri gali žymiai padidinti nekilnojamojo turto vertę ir pagerinti kasdienio gyvenimo kokybę. Šiuolaikinis vonios kambarys yra ne tik funkcionali patalpa, bet ir poilsio erdvė, leidžianti atsipalaiduoti po sunkaus darbo dienos. Tuo pačiu jos remontas susijęs su daugybe iššūkių - nuo tinkamų medžiagų parinkimo, per pritaikytas instaliacijas, iki patyrusių specialistų suradimo.
Statistika rodo, kad lietuviai vis dažniau nusprendžia atnaujinti savo vonios kambarius, kad jie atitiktų šiuolaikinius standartus. Ilgaamžiškumas, vandens ir energijos taupymas bei estetiška išvaizda yra pagrindiniai veiksniai, lemiantys sprendimą atnaujinti.
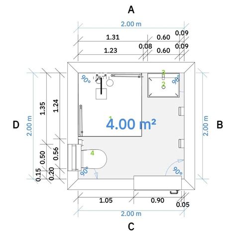
Nesvarbu, kokio dydžio jūsų vonios kambarys - ar tai būtų mažas kambariukas daugiabutyje, ar erdvus vonios kambarys privačiame name - tinkamas planavimas ir remontas leidžia sukurti erdvę, puikiai atitinkančią jūsų poreikius. Pradžioje verta apsvarstyti, kaip vonios kambarys naudojamas kasdien. Ar jo naudotojams reikia dvigubos kriauklės? Ar svarbiau būtų skalbimo mašinai skirtos vietos, ar didesnės vonios erdvės? Prioritetų nustatymas šiuo etapu padės išvengti klaidų ateityje.
Taip pat verta įvertinti savo estetikos poreikius ir lūkesčius - kai kurie svajoja apie puikų vonios kambarį glamūr stiliumi, o kiti pirmenybę teikia minimalizmui.
Populiarūs interjero stiliai
- Industrinis - jam būdingi griežti apdailos elementai, betoninės sienos ir juoda santechnika, kas ne visiems patinka, bet yra laikoma labai modernia
- Eklektiškas stilius - modernių ir klasikinių elementų derinys, pavyzdžiui, antikvarinis veidrodis šalia modernių plytelių vonios kambaryje. Taip paruoštas vonios kambarys atrodys itin patraukliai.
Prieš pradėdami darbus, svarbu suplanuoti vonios kambario remonto eigą. Tinkamas planas padės išvengti problemų ir papildomų išlaidų. Štai veiksmai, kuriuos verta atlikti:
- Vonios kambario būklės įvertinimas - nustatyti elementus, kuriuos reikia pakeisti, pvz. senas plyteles, instaliacijas ar santechnikos įrenginius.
- Biudžeto numatymas - remonto kaina priklauso nuo darbų apimties ir naudojamų medžiagų kokybės. Verta pasiruošti rezervą nenumatytiems išlaidoms.
- Vonios kambario projektas - svarstyti apie tokių elementų kaip vonia, dušas, kriauklė ar spintelės išdėstymą. Galima pasinaudoti profesionalaus dizainerio pagalba, užtikrinančio sėkmingą vonios kambario pertvarkymą.
- Remonto brigados samdymas ar darbas savarankiškai - neturint reikiamos kvalifikacijos verta naudotis specialistų paslaugomis. Atliekant savarankišką remontą, rekomenduojame suplanavus daugiau laiko tiek dideliam, tiek mažam vonios kambariui.
Kaip ilgai truks vonios kambario remontas, priklauso daugiausia nuo to, kas atliks kiekvieną etapą. Patyrusi remonto komanda dažniausiai susidoros su viskuo gerokai sparčiau nei asmuo, dirbantis vienas. Be to, ne visada galima savarankiškai susitvarkyti su vonios kambario remontu, net jei kasdien užsiima tokiais darbais ir žino, kaip pradėti nuo nulio. Plytelių ardymas, sienos išlyginimas ar kitos užduotys dažniausiai reikalauja mažiausiai vieno papildomo asmens pagalbos - taip pat dėl saugumo sumetimų.

Kiek kainuoja vonios kambario remontas?
Vonios kambario, skirto kasdienei higienai, remonto išlaidos priklauso nuo daugelio veiksnių, tokių kaip:
- Vonios kambario plotas - mažas vonios kambarys bus pigesnis remontuojant nei erdvus naujas vonios kambarys privačiame name.
- Darbų apimtis - bendras vonios kambario remontas apima keramikos plytelių ardymą, instaliacijų keitimą ir interjero apdailą.
- Naudotų medžiagų rūšis - keramikos plytelės, santechnika, baldai ir priedai gali skirtis kainomis, priklausomai nuo kokybės ir prekės ženklo.
Pavyzdinės išlaidos:
- Senų plytelių demontavimas: 30-50 zl/m²
- Naujų plytelių klojimas: 70-150 zl/m²
- Vonios arba dušo montavimas: 500-1000 zl
- Sienų dažymas: 20-30 zl/m²
Bendros vonios kambario remonto išlaidos gali siekti nuo kelių iki keliolikos tūkstančių zlotų, priklausomai nuo vietos (pavyzdžiui, aukštesnės kainos Vilniuje ir kituose dideliuose miestuose), medžiagų kokybės ir darbo kaina už kvadratinį metrą.
300 stilingų mažų vonios kambarių dizainų 2025 m. Mažų vonios kambarių dekoro idėjos | Modernūs vonios kambario interjero dizainai
Bendras vonios kambario remontas - darbų eiliškumas
Bendrai vonios kambario remontuojant svarbiausia laikytis tinkamos darbų eilės:
Demontavimas ir patalpos paruošimas
- Plytelių ardymas ir senų santechnikos įrenginių šalinimas.
- Sienų išlyginimas ir grindų paruošimas.
Instaliaciniai darbai
- Kanalizacijos ir elektros instaliacijos keitimas arba modernizavimas.
- Linijinio nutekėjimo montavimas arba vonios instaliacijos paruošimas.
Hidroizoliacija
- Sienų ir grindų apsauga nuo drėgmės naudojant skystą foliją ar specialias membranas.
Plytelių klojimas
- Sienų ir grindų plytelių montavimas.
- Fugų pildymas (pvz., cemento ar epoksidinės).
Santechnikos įrenginių montavimas
- Vonios, dušo kabinos, kriauklės ir tualeto montavimas.
- Santechnikos įrangos prijungimas.
Interjero apdaila
- Apšvietimo, šildytuvo, vonios baldų ir priedų montavimas.
- Sienų, kurios nepridengtos plytelėmis, dažymas.
Vonios kambario remonto kaina daugiabutyje
Daugiabučio vonios remontas susiduria su papildomais iššūkiais, pvz., apribota erdve ar būtinybe pranešti apie kai kuriuos darbus administracijai. Vonios kambario remonto išlaidos daugiabutyje dažniausiai priklauso nuo:
- Darbų apimties - mažo vonios kambario remontas paprastai apima plytelių, santechnikos ir baltos apdailos keitimą.
- Pasirinktų medžiagų - esant ribotam biudžetui, verta pasirinkti vidutinės kainos sienų plyteles bei standartinę įrangą.
- Darbo jėgos - darbo kaina daugiabutyje gali būti didesnė dėl sunkesnio prieigos prie kambario ir medžiagų transportavimo.
Vonios kambario remontas daugiabutyje - pavyzdinė kaina:
- Senų plytelių ardymas: 1000-1500 zl
- Glazūros klojimas: 3000-5000 zl
- Vandentiekio-ir kanalizacijos instaliacijos keitimas: 2000-4000 zl
- Įrangos montavimas: 2000-3000 zl
Kaip sumažinti išlaidas remontuojant vonios kambarį?
Senos vonios kambario remontas neprivalo būti brangus, jei asmuo nusprendęs jį vykdyti pritaikys keletą šių „triukų":
- Atnaujinimas vietoje keitimo - vietoje susidėvėjusių plytelių keitimo vonios kambaryje, galima jas nudažyti specialiu keramikos dažais.
- Medžiagų pirkimas su nuolaidomis - verta pasinaudoti išpardavimais statybinių parduotuvių, tokių kaip Mexen.pl.
- Savarankiškas paprastų darbų atlikimas - sienų dažymas ar lentynų montavimas, dauguma žmonių gali atlikti patys.
- Atsisakymas prabangos elementų - siekiant sumažinti išlaidas, galima pasirūpinti funkcionalumu vietoj brangios įrangos.
Kokias dažniausias klaidas daroma remontuojant vonios kambarį?
Kaip parodo praktika, jų daugybė, tačiau dėka mūsų jų lengva išvengti. Geriausia mokytis iš kitų klaidų nei iš savų. Kas galėtų kliudyti gauti norimus rezultatus? Visų pirma:
- Nėra tinkamo projekto - nepriimtinas įrangos dalies pritaikymas erdvei sukelia problemų dėl funkcionalumo.
- Hidroizoliacijos praleidimas - nesugebėjimas apsaugoti sienas ir grindis nuo drėgmės gali sukelti pelėsių atsiradimą ir reikalauti dar vieno remonto.
- Netinkama medžiagų parinktis - prasta plytelių ar santechnikos kokybė gali paveikti apdailos ilgaamžiškumą.
- Nepriklausomas elementų išdėstymo apmąstymas - netinkamas vonios, kriauklės ar tualeto išdėstymas gali apsunkinti kasdienį vonios kambario naudojimą.

Kaip pasirinkti tinkamas vonios plyteles?
- Medžiaga ir apdaila - keramikos plytelės yra populiariausias pasirinkimas dėl jų ilgaamžiškumo ir lengvos priežiūros. Voniose, turinčiose modernų stilių, sėkmingai naudojamos ir gresinės plytelės, imituojančios betoną ar medį.
- Plytelių dydis ir išdėstymas - didelės plytelės optiškai padidina patalpą, o mažos mozaikos prideda grakštumo. Vis dėlto reikėtų nepamiršti, kad mažų plytelių klojimas reikalauja daugiau darbo, kas gali padidinti darbų kainą.
- Spalvų pasirinkimas ir raštai - Šviesios spalvos, tokios kaip balta ar smėlio, daro vonią didesnę ir erdvesnę. Tamsios plytelės kartu su LED apšvietimu suteikia vidaus eleganciją.
Vonios apšvietimas - praktiniai patarimai
Vonios apšvietimas turėtų būti tiek funkcionalus, tiek dekoratyvus. Verta investuoti į:
- Bendras apšvietimas - dažniausiai lubose, užtikrinantis vienodą šviesos paskirstymą.
- Apšvietimas prie veidrodžio - lempos abiejose veidrodžio pusėse sumažina šešėlius ant veido.
- LED apšvietimas - LED juostos po spintelėmis arba aplink jas.
Papildomi patarimai mažų vonių renovuotojams
Mažose voniose svarbiausia - protingai paskirstyti erdvę. Kampinės spintelės, prausyklės ir veidrodžiai, optiškai didinantys vidų, yra sprendimai, kurie gali daryti stebuklus. Naudojant pagrindinių tualetų potinkinius stelažus arba baterijas, sujungtas su kriauklėmis, galima sutaupyti vertingų centimetrų laisvos erdvės, kurią vėliau galima panaudoti savo nuožiūra ar tiesiog palikti, užtikrinant judėjimo laisvę patalpoje.
Reikalavimai sanitarinio mazgo įrengimui bendrabučio tipo bute
Statybos inspekcija primena, kad buto perplanavimo reikalavimai nustatyti statybos techniniame reglamente STR 2.02.01:2004 „Gyvenamieji pastatai“ (Reglamentas).
Reglamente nurodyta, kad leidžiama keisti visas vidaus atitvaras nelaikančias konstrukcijas, jeigu naujai suplanuotos patalpos atitiks šio Reglamento nustatytus minimalius patalpų dydžių reikalavimus arba naujai suplanuotos patalpos nesumažins izoliacijos, nepablogins vėdinimo, šildymo ir dirbtinės apšvietos rodiklių, garso izoliacijos, rašoma pranešime spaudai.
Vonios ir tualeto patalpose galima keisti sanitarinių prietaisų tipus ir vietas su sąlyga, kad šių prietaisų prijungimo vietos tilptų tarp šių patalpų ribų, o prietaisų nuotakai iki esamų stovų būtų klojami virš perdangos lygio.
Jei nėra galimybių įrengti naujai projektuojamų vonios ir tualeto patalpų virš kituose aukštuose esančių šios paskirties patalpų (tarp jų ribų), leidžiama jas įrengti virš kitos paskirties patalpų, užtikrinant vandens ir nuotekų nepratekamumą, mikrobinės taršos išvengimą, nepadidinant esamo triukšmo lygio ir nepabloginant kvapų, jei šių prietaisų nuotakai klojami virš perdangos ir prijungiami prie esamų stovų.
Kiti reikalavimai priklauso nuo to, kuriai statybos rūšiai (paprastajam ar kapitaliniam remontui) pagal statybos techniniame reglamente STR 1.01.08:2002 „Statinio statybos rūšys“ nurodytus požymius priskiriami šiuo atveju atliekami papildomos vonios ir (ar) tualeto įrengimo darbai.
Jeigu perplanuojant butą nepertvarkomos (nekeičiamos, nesilpninamos, nestiprinamos ir pan.) esamos statinio laikančiosios konstrukcijos (pvz., perdangos, laikančiosios sienos), tai statybos darbai priskirtini statinio paprastajam remontui.
Tačiau, jei vonią ir (ar) tualetą prijungiant prie pastato bendrųjų vandentiekio ir nuotekų inžinerinių sistemų, statinio laikančiosios konstrukcijos pertvarkomos (keičiamos, silpninamos, stiprinamos ir pan.), laikytina, kad atliekamas statinio kapitalinis remontas.
Remiantis Statybos įstatymo 27 straipsnio 1 dalies 4 ir 5 punktų nuostatomis, statybą leidžiantis dokumentas (toliau - SLD) - leidimas atlikti statinio kapitalinį ar paprastąjį remontą būtų privalomas, jeigu perplanuojant butą (įrengiant papildomą vonią ir (ar) tualetą) būtų įrengiamos, pertvarkomos, išmontuojamos pastato dujų, šildymo ar elektros bendrosios inžinerinės sistemos ar remonto darbais būtų keičiama pastato išorės išvaizda.
Statybos įstatymo 24 straipsnio 3 dalyje nustatyta, kad statinio projektas turi būti parengtas tais atvejais, kai privaloma gauti šio įstatymo 27 straipsnio 1 dalies 1-7 punktuose nurodytus SLD, o daugiabučių namų kapitalinio remonto projektai turi būti parengti visais atvejais.
Taigi, jeigu laikantis Reglamento 263 punkto reikalavimų įrengiant papildomą vonią ir (ar) tualetą pastato viduje būtų atliekami statinio kapitaliniam remontui priskiriami statybos darbai, būtų privaloma parengti statinio kapitalinio remonto projektą ir atlikti šio projekto ekspertizę, nors SLD ir neprivalomas.
Paprastojo remonto atveju nei projektas, nei SLD neprivalomi.
Tačiau SLD būtų privalomas abiem atvejais, jei perplanuojant butą būtų pastato viduje atliekamais statybos darbais būtų pertvarkomos, išmontuojamos pastato dujų, šildymo ar elektros bendrosios inžinerinės sistemos.
Statybos inspekcijos specialistai pabrėžia, kad jei dėl įrengimo darbų, reikės pertvarkyti daugiabučio namo bendro naudojimo objektus (bendrąją vandentiekio ar nuotekų inžinerinę sistemą, laikančiąsias konstrukcijas ir pan.), tokiu atveju reikės gauti daugumos butų ir kitų patalpų savininkų sutikimus.
Triukšmo apribojimai remonto metu
Tai dažniausiai pažeidžiama taisyklė, sukelianti nesutarimus tarp kaimynų. Įstatymai aiškiai nurodo, kada leidžiama naudoti triukšmingą įrangą ir kokiais atvejais gresia baudos. Žinodami taisykles galite išvengti konfliktų ir bausmių.
Vadovaujantis Triukšmo valdymo įstatymo 13 straipsnio 1 dalimi, savivaldybių institucijos turi teisę nustatyti gyvenamųjų vietovių triukšmo rodiklius ir patvirtinti triukšmo taisykles, kurių privalo laikytis gyventojai.
Triukšmas, viršijantis nustatytus leistinus ribinius dydžius ar sklindantis ramybės metu, gali užtraukti administracinę atsakomybę.
Administracinė atsakomybė už triukšmo pažeidimus
Vadovaujantis Administracinių nusižengimų kodekso 48 straipsniu, už Triukšmo valdymo įstatymo ir kitų triukšmo reguliavimo teisės aktų pažeidimus skiriama bauda nuo 100 iki 600 eurų, o pakartotinio pažeidimo atveju - nuo 500 iki 1000 eurų. Jei pažeidžiamos savivaldybių tarybų patvirtintos triukšmo prevencijos taisyklės viešosiose vietose, galima gauti baudą nuo 150 iki 600 eurų.
Dažniausiu atveju remonto darbų laikas daugiabutyje yra leidžiamas darbo dienomis nuo 7 val. ryto iki 19 val. vakaro, o savaitgali ir švenčių dienomis nuo 9 val. ryto iki 17 val.. Nepaisant šio nustatyto laiko ir skleidžiant bet kokį triukšmą po 19 val.
Informavimas apie remontą
Pagal Triukšmo valdymo įstatymo 14 straipsnio 2 dalį, jeigu planuojate daugiabutyje atlikti statybos, remonto ar montavimo darbus, privalote ne vėliau kaip prieš 7 kalendorines dienas iki darbų pradžios informuoti savo savivaldybės institucijas. Pranešime turi būti nurodyta triukšmo šaltinių naudojimo vieta, planuojamas triukšmo lygis, jo trukmė ir taikomos triukšmo mažinimo priemonės.
Praktiškai rekomenduojama pranešti ir kaimynams, iškabinti informaciją laiptinėje - taip sumažinsite konfliktų tikimybę.

Kaimynų sutikimai
Prieš informuodami miesto savivaldybę apie būsimus remonto darbus, visų pirma, patartina, pranešti apie juos savo kaimynams, o dar geriau, galite pasinaudoti užsienyje gan populiaria raštiška sutikimo forma.
Tvarka remonto metu
Norėdami, kad Jūsų kaimynai Jums nekvaršintų galvos dėl betvarkės laiptinėje ir kieme, prieš pradedant namų remonto projektą, su darbų vadovu aiškiai apsitarkite darbo tvarkos taisykles, nurodykite, kas yra leidžiama, o kas yra ne.
Leidimai remontui
Jeigu atliekate paprastąjį remontą, t. y. dažote sienas, keičiate grindis, duris ar plyteles - leidimo nereikia.
Leidimas yra būtinas, kuomet planuojami atlikti daugiabučio namo paprastojo remonto darbai, kuomet yra keičiama pastato išvaizda. Pavyzdžiui - įstiklinami balkonai ar lodžijos, keičiama fasado spalva, fasado elementų keitimas ar naujų įrengimas, esamų angų pastato fasade užtaisymas ir pan.
Atsakomybė už remontą be leidimo
Atliekant remonto darbus neturint iš anksto išduoto leidimo gresia baudos. Savavališkai atliekant paprastąjį remontą teks susimokėti nuo 300 Eur iki 600 Eur baudą, o be leidimų atliekamas kapitalinis remontas daugiabučiame name užtraukia baudą iki 2300 Eur.
Kadastro duomenų atnaujinimas
Ardant laikančiąsias konstrukcijas, bet kokia savivalė apskritai yra labai pavojinga visam namui, bet net ir koreguojant nenešančias (nekapitalines) sienas, privaloma informuoti savivaldybę ir atlikti buto statybos užbaigimo procedūrą, atnaujinti kadastro duomenis bei juos įregistruoti.
Kaip susikalbėti konflikto metu?
Kita svarbi priežastis turėti tikslius kadastro duomenis yra kaina - tiek iš pirkėjo, tiek iš pardavėjo perspektyvos. Išgriovus sieną, buto kvadratūra didės 0,5-2 kv. m, kartais ir dar daugiau. Tai tarsi neatrodo didelis plotas, tačiau tai vis tiek reiškia keturženklį, o ypatingais atvejais ir penkiaženklį kainos skirtumą.
Kiek kainuoja ir ką daryti?
Priklausomai nuo to, ar procedūrą atliksite patys, ar kreipsitės pagalbos į NT dokumentų specialistus, remonto įforminimas kainuos apie 500 EUR ir PVM. Kadastriniai matavimai, priklausomai nuo buto ploto, gali siekti 100-300 EUR, statybos užbaigimo deklaracija apie 100 EUR, dar tiek pat kainuos kadastro duomenų atnaujinimas Registrų centre.
Papildomi patarimai
Būsto remontą atliekantys turėtų patys pasirūpinti laiptinių, liftų ir kitų bendrųjų patalpų, švara.
Radiatorių keitimas
Tokius darbus reikėtų planuoti pavasarį po šildymo sezono pabaigos arba ankstyvą rudenį, prieš šildymo sezono pradžią.
tags: #kaip #pedaryti #vonia #vilnaus #daugiabutyje